101,99 €
inkl. MwSt.fischer DuoXpand 10x120 FUS B (10)
Standardlieferung:
bis spätestens
Di., 20. Jan.
Hersteller & Informationen
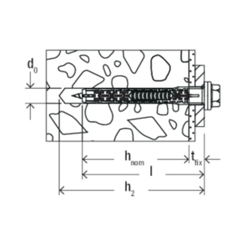
- Die abgestimmte Kombination aus Design und Material beißt sich perfekt in alle Baustoffe und ermöglicht den universellen Einsatz
- Die spezielle Lamellengeometrie verspreizt sich materialschonend im jeweiligen Baustoff
- Dies vermeidet Brüche in porösen Baustoffen und ermöglicht randnahe Verankerungen
- Der graue Grundkörper aus hochwertigem Nylon bietet starken Halt, während die rote Materialkomponente für Flexibilität und optimales Aufspreizen sorgt
- Die Europäische Technische Bewertung (ETA-21/0324) für Mehrfachbefestigung von nichttragenden Systemen gewährleistet sicheren Halt in allen Baustoffklassen
- DuoXpand 10 in den Längen 80, 100, 180 und 200 mm ist geeignet für die Verankerung unter seismischer Einwirkung in Mauerwerk aus Hohl- oder Lochsteinen (ETA-22/0186)



